物件解説
名古屋の中心地より電車で一本、駅前にショッピングモールなどもある東海道本線の「刈谷」という駅から車で5分ほど、のどかな畑の風景と住宅街の狭間の傾斜地に、重原本町の家は建っています。
風景に馴染みつつも、しっかりとした存在感を放つ、その住宅は建築家の宇野友明氏の設計で2023年に竣工しました。

宇野友明(うの ともあき)氏は、1960年愛知県生まれの建築家です。1983年に神奈川大学工学部建築学科を卒業後、長谷部建築設計事務所に勤務。1990年に「宇野友明建築事務所(Tomoaki Uno Architects)」を設立し、名古屋を拠点に独自の建築を展開しています。
宇野氏の設計は、ミニマリズムや素材への深い洞察に加え、伝統的な建築技法への敬意と現代的な空間表現の融合が特徴です。住宅やゲストハウス、リノベーションまで幅広いプロジェクトを手がけ、機能性と詩的な空間体験を両立させています。
代表作には、石積みとピラミッドの要素を取り入れた「高峯町の家」や、伝統と現代性を融合させた「徳川町ゲストハウス」、光と影を巧みに扱う住宅「栄生の家」などがあります。いずれも、静謐でありながら独自の存在感を放つ空間として、国内外で高く評価されています。
また、宇野氏は建築家でもありながら、棟梁でもあります。設計施工を自社で行うことで、素材と職人の力を最大限に引き出し、一つ一つ手作りしていくからこそ出来る独自の建築の在り方を体現しています。
近年では、大量生産品に飽きた全ての人々がアクセスできるように「U」というプロダクトブランドを立ち上げ、宇野建築の特徴でもある素材の特性を活かした品格あるモダンなプロダクトにも取り組んでいます。

玄関アプローチ側。
現オーナーは、メディアを通じて宇野建築に憧れを抱き、エッセイ「見たことのない普通のたてものを求めて」を読み、宇野氏の建築に向き合う誠実な想いや仕事観に感銘を受けたそうです。
その後、自邸を建てる際には迷うことなく宇野氏に依頼したいと、想いを伝えてこのプロジェクトがスタート。設計、施工、竣工と宇野氏との信頼関係を築く中で、機能的でミニマムなデザインの中にある「素材」と「ものづくり」への探求を共有し、宇野氏が生み出す情緒的な建築の美しさに魅了されていきました。

まずは外観を見ていきましょう。
もともと斜面地であった敷地の形状を活かし、地面から約1.9m持ち上げピロティを設けた平屋建てとなっています。木造の軸組みの中に箱が入れ子になっている構造で、壁面は断熱性と重厚感を目的にダブルスキンとしており、柱のリズムで立面を構成しています。壁面は単なる面にならず、微細な影が立体感を出し、重厚感を演出しています。
また妻側の屋根は、外壁ラインからそのまま立ち上げるのではなく、上部を斜めにセットバックさせ、屋根が浮いているような印象を作り出すことで入れ子の箱が強調されています。セットバック部分は伝統的な工法の杮葺きで仕上げており、見えにくい部分まで丁寧にデザインされているのも見てほしいポイントの一つです。

次に、ピロティを見ていきましょう。
斜面地を造成して平らにするのではなく、建物がそっと土地に寄り添うように、足を伸ばして立っているようです。それにより生まれた建物下のピロティ空間も斜面に石積みを施すなど丁寧に設えられおり、テーブルと椅子を置いて、ゆっくりとお茶を楽しむ時間を過ごすのも良さそうです。実際に現オーナーは、この場所を暖炉の薪置場として活用していたそうです。

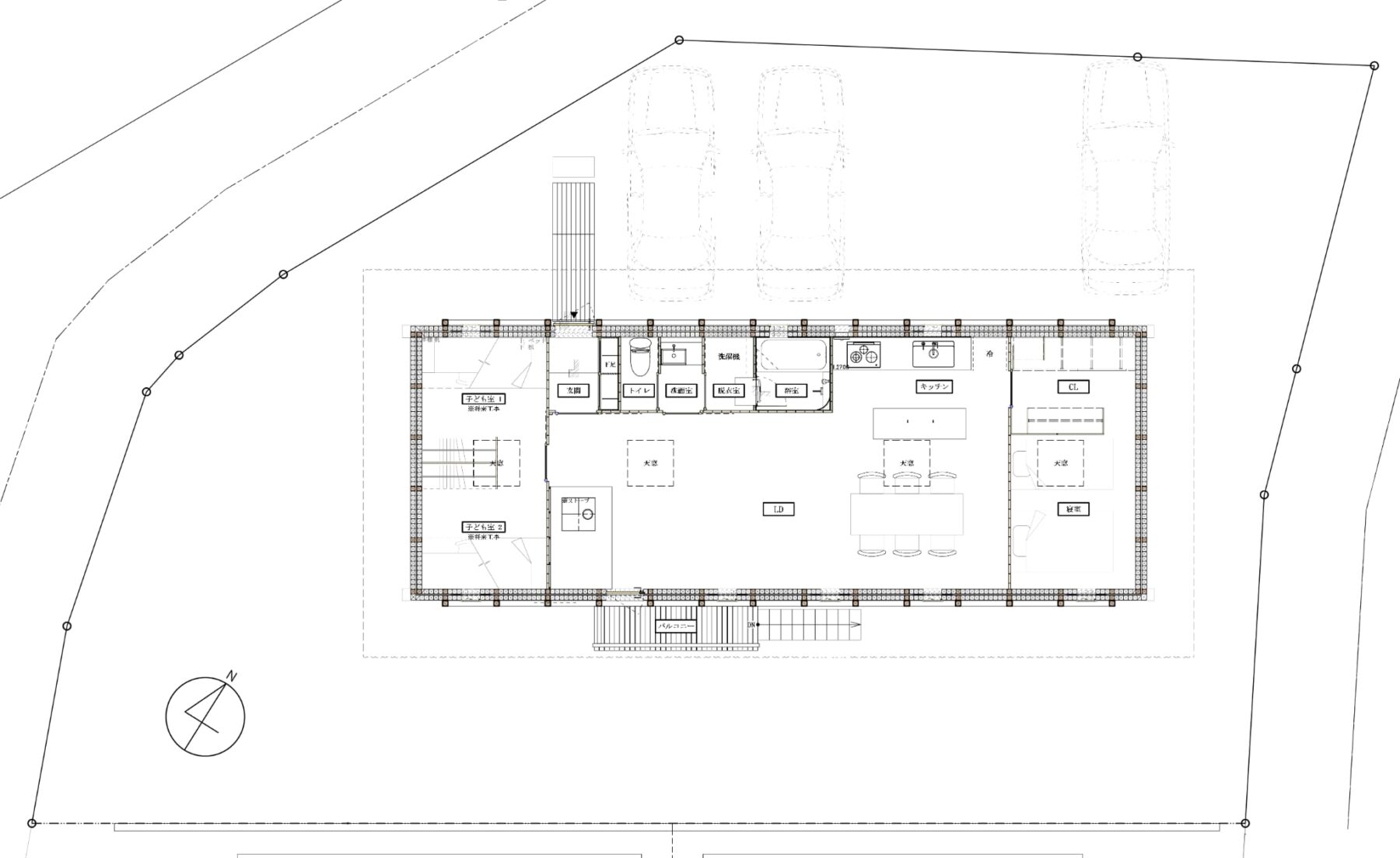
さあ、室内へ入り、住宅の中心となるリビング空間です。
ひとつながりの空間の中に、水回りが納められた木の箱が入れ子状に配置されています。
天井は格子梁に杉板材を貼り、構造性能と天井仕上げを同時に賄っています。室内に柱のない大きなワンルーム空間を可能としている工夫の一つです。また、2つのトップライトからは、上部から柔らかい光が降り注ぎます。
隣家が近接する南側に合わせた可愛らしい小窓を外周部の開口として設けプライバシー性を高めつつ、敢えて光を抑制することで生まれる緊張と平穏さが合わさった澄んだ空気感。寺社仏閣にみる陰翳礼讃に通じるものを感じます。
写真奥で存在感を放つ暖炉は、宇野氏の建築においてはよく見られる要素ですが、毎回その家に合わせて作り込まれるオリジナルの一品です。

逆側から見たリビング空間。
ミニマムな空間の構成を損なわない工夫として、エアコンを天井内と床下に配置しています。天井内のエアコンは主に冷房用で、小屋裏全体を空調することで天井面からの輻射熱効果により室内全体を冷やします。それでも暑い時は、トップライト側面に設けた搬送ファンによりスポット的に小屋裏の冷気を吹き出すことが可能です。床下のエアコンは、冬に床暖房として使われています。

小窓のディテール。
窓開口部に目をやると、構造として外周の壁が90角・長さ3mの角柱を内外二重(ダブルスキン)に立てて並べ、面材ではなく細い柱の集合体として成立させていることが分かります。それにより外皮性能(遮熱)と内皮性能(断熱)を明確に分け、中間の空気層には構造用面材と透湿防水シートを貼ることで構造と防水調湿機能を補完させています。
窓はそのダブルスキンの隙間を利用してガラス戸(左側)と網戸(右側)をそれぞれ設置しています。

中心のリビング空間を挟み、両側には個室が配置されており、主寝室と子供部屋という使い分けができます。
主寝室はウォークインクローゼットを経由してアプローチする構成となっており、省スペースでありながら使い勝手がよい空間。木で包まれた空間は落ち着きがあり、トップライトから降り注ぐ柔らかい光も相まって、安らげる場所になっています。

浴室は一般的なユニットバスではなく、FRP(繊維強化プラスチック)で現場造作した一体成形。床・壁・浴槽がすべて連続し、コーナー部もR処理されているため、隙間や目地がなく掃除が非常にしやすくなっています。継ぎ目のないFRPの質感がとても愛くるしい、こだわりの浴室です。

外部に用いられている特製のスチールドアハンドルは、時が経つにつれて、錆びが生まれ、少しずつ表情が変化していきます。その変わりゆくその姿を楽しむことこそ、時間の経過を愛し、「経年美化」とともに暮していくことの醍醐味と言えるでしょう。

エントランス上の照明。

ポストやインターホンカバーも特注品。完成後数年が経ち、錆がまわり土地に馴染んだ雰囲気が出てきています。


南側隣地との間の外部階段は、太いヒノキの角材3本を段状にを削り出して一体的に組み、金物でつなぎながら造作した手の込んだディテール。作り方自体から考える宇野建築の真髄を感じることができる部分の一つです。


ここまで随所にわたるこだわりを語ってきましたが、機能的でミニマムなデザインの中にある「素材」と「ものづくり」への探求、情緒的な建築の美しさが詰め込まれたこの住宅。
もちろん現オーナーも長く住み続けることを想定して建築し、とても気に入って住んでいましたが、お仕事のご事情で次の住まい手を探すことになりました。
現オーナーは、この住宅で過ごした中で、暖炉に火をくべて、趣味のレコードプレーヤーからの音楽を聴く時間が、とりわけ最高だったと話します。
美しく心地よい空間で過ごす豊かな時間や宇野建築の静謐な経年美化の移ろいを暮らしの中で感じたい方に是非引き継いで欲しい。
自宅として住むことはもちろん、2拠点生活の別宅や別荘としての利用を検討するのも良さそうです。
海外からも高く評価される宇野建築で過ごす時間を、手に入れることが出来る機会はなかなかありません。気になった方はお問い合わせください。
家具が入った写真等は下記より別サイト(ArchDaily)にてご覧いただけます。
